Q347F不銹鋼蝸輪固定球閥
產品概況
產品型號:Q347F
公稱通徑:DN32~700mm
公稱壓力:PN1.6~4.0MPa
工作溫度:-28~300℃
設計制造:GB12237-89、API 6D、JPI7S-48
法蘭尺寸:JB79-59、SH3406、GB9113、HG20592-97、ANSIB16.5、JIS B 2212-2214
結構長度:GB12221-89、ANSI B 16.10、JIS B2002
試驗與檢驗:GB/T13927-89、JB/T9092-99、API 598
Q347F不銹鋼蝸輪固定球閥產品用途:
百鋼閥門集團生產銷售的Q347F不銹鋼蝸輪固定球閥適用于工作溫度-28~300℃的石油、化工、火力電站等各種工況的管路上,切斷或接通介質。適用介質為:水、蒸汽、油品、硝酸、醋酸、尿素等腐蝕性和強氧化性介質。操作方式有:手動、氣動、電動、液動和氣液聯動等。
Q347F不銹鋼蝸輪固定球閥產品結構特點:
1、使用壽命長、密封環選用自潤滑聚四氟乙烯材料。球體與密封環微摩擦,有效提高使用壽命。
2、體積小,重量輕,易于安裝保養。
3、固定球閥結構可任意方向安裝與管路的任何部位。
4、V型接疊軸向填料,達到防腐A級密封。
Q347F不銹鋼蝸輪固定球閥壓力試驗:
| 公稱壓力 | 1.6 | 2.5 | 4.0 |
| 強度試驗 | 2.4 | 3.8 | 6.0 |
| 水密封試驗 | 1.8 | 2.8 | 4.4 |
| 氣密封試驗 |
0.4-0.7 |
||
Q347F不銹鋼蝸輪固定球閥主要零件材料及性能:
| 閥體 | WCB | ZG1Cr18Ni9Ti | CF8 | CF3 | ZG1Cr18Ni12Mo2Ti | CF8M | CF3M |
| 球體閥桿 | 2Cr13 | 1Cr18Ni9Ti | 304 | 304L | 1Cr18Ni12Mo2Ti | 316 | 316L |
| 閥座 |
聚四氟乙烯PTFE加坡纖增強聚四氟乙烯PTFE+Glass對位聚笨PPL |
||||||
| 墊片 |
聚四氟乙烯PTFE不銹鋼/柔性石墨/齒形墊片 |
||||||
| 閥桿座 |
聚四氟乙烯PTFE不銹鋼/柔性石墨 |
||||||
| 填料 |
聚四氟乙烯PTFE增強柔性石墨 |
||||||
| 填料壓蓋 | WCB | 1Cr18Ni9Ti | 304 | 304L | 1Cr18Ni12Mo2Ti | 316 | 316L |
| 溫度 |
-29~150(聚四氟乙烯PTFE)-29~200(加玻纖增強聚四氟乙烯PTFE+GLASS)-29~300(對位聚笨PPL) |
||||||
| 介質 | 水蒸汽油品 |
硝酸類 |
強氧化介質 |
醋酸類 |
尿素類 | ||
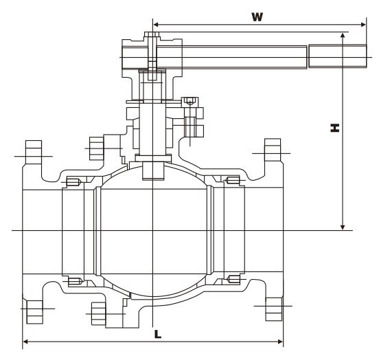
Q347F不銹鋼蝸輪固定球閥規格主要尺寸:

| 1.6MPa | DN | L | D | D1 | D2 | b | n-φd | H0 | H1 | H2 |
|
凸面法蘭 Q347F 16C 16P 16R |
32 | 140 | 135 | 100 | 78 | 16 | 4-18 | 30 | 85 | 160 |
| 40 | 165 | 145 | 110 | 85 | 16 | 4-18 | 32 | 95 | 230 | |
| 50 | 178 | 160 | 125 | 100 | 16 | 4-18 | 43 | 107 | 230 | |
| 65 | 190 | 180 | 145 | 120 | 18 | 4-18 | 70 | 142 | 400 | |
| 80 | 203 | 195 | 160 | 135 | 20 | 8-18 | 110 | 152 | 400 | |
| 100 | 305 | 215 | 180 | 155 | 20 | 8-18 | 150 | 178 | 500 | |
| 125 | 356 | 245 | 210 | 185 | 22 | 8-18 | 200 | 252 | 500 | |
| 150 | 394 | 280 | 240 | 210 | 24 | 8-23 | 230 | 278 | 600 | |
| 200 | 457 | 335 | 295 | 265 | 26 | 12-23 | 260 | 395 | 600 | |
| 250 | 533 | 405 | 355 | 320 | 30 | 12-25 | 283 | 480 | 800 | |
| 300 | 610 | 460 | 410 | 375 | 30 | 12-25 | 380 | 585 | 800 | |
| 350 | 686 | 520 | 470 | 435 | 34 | 16-25 | 425 | 625 | 800 | |
| 400 | 762 | 580 | 525 | 485 | 36 | 16-30 | 492 | 720 | 800 | |
| 500 | 914 | 705 | 650 | 608 | 44 | 20-34 | 555 | 840 | 830 | |
| 600 | 1067 | 840 | 770 | 718 | 48 | 20-41 | 675 | 1050 | 830 | |
| 700 | 1245 | 910 | 940 | 788 | 50 | 24-41 | 850 | 1150 | 830 |
| 2.5MPa | DN | L | D | D1 | D2 | b | n-φd | H0 | H1 | H2 |
|
凸面法蘭 Q347F 25 25P 25R |
32 | 180 | 135 | 100 | 78 | 18 | 4-18 | 30 | 85 | 160 |
| 40 | 190 | 145 | 110 | 85 | 18 | 4-18 | 32 | 95 | 230 | |
| 50 | 216 | 160 | 125 | 100 | 20 | 4-18 | 43 | 107 | 230 | |
| 65 | 241 | 180 | 145 | 120 | 22 | 8-18 | 70 | 142 | 400 | |
| 80 | 283 | 195 | 160 | 135 | 22 | 8-18 | 110 | 152 | 400 | |
| 100 | 305 | 230 | 190 | 160 | 24 | 8-23 | 150 | 178 | 500 | |
| 125 | 381 | 270 | 220 | 188 | 28 | 8-25 | 200 | 252 | 500 | |
| 150 | 403 | 300 | 250 | 218 | 30 | 8-25 | 230 | 278 | 600 | |
| 200 | 502 | 360 | 310 | 278 | 34 | 12-25 | 260 | 395 | 600 | |
| 250 | 568 | 425 | 370 | 332 | 36 | 12-30 | 283 | 480 | 800 | |
| 300 | 648 | 485 | 430 | 390 | 40 | 16-30 | 380 | 585 | 800 | |
| 350 | 762 | 550 | 490 | 448 | 44 | 16-34 | 425 | 625 | 800 | |
| 400 | 838 | 610 | 550 | 505 | 48 | 16-34 | 492 | 720 | 800 | |
| 500 | 991 | 730 | 660 | 610 | 52 | 20-41 | 555 | 840 | 830 | |
| 600 | 1143 | 840 | 770 | 718 | 56 | 20-41 | 675 | 1050 | 830 | |
| 700 | 1346 | 955 | 875 | 815 | 60 | 24-48 | 850 | 1150 | 830 |
| 4.0MPa | DN | L | D | D1 | D2 | D6 | b | n-φd | H0 | H1 | H2 |
|
凸凹法蘭 Q347F 40 40P 40R |
32 | 180 | 135 | 100 | 78 | 66 | 18 | 4-18 | 30 | 85 | 160 |
| 40 | 190 | 145 | 110 | 85 | 76 | 18 | 4-18 | 32 | 95 | 230 | |
| 50 | 216 | 160 | 125 | 100 | 88 | 20 | 4-18 | 43 | 107 | 230 | |
| 65 | 241 | 180 | 145 | 120 | 110 | 22 | 8-18 | 70 | 142 | 400 | |
| 80 | 283 | 195 | 160 | 135 | 121 | 22 | 8-18 | 110 | 152 | 400 | |
| 100 | 305 | 230 | 190 | 160 | 150 | 24 | 8-23 | 150 | 178 | 500 | |
| 125 | 381 | 270 | 220 | 188 | 176 | 28 | 8-25 | 200 | 252 | 500 | |
| 150 | 403 | 300 | 250 | 218 | 204 | 30 | 8-25 | 230 | 278 | 600 | |
| 200 | 502 | 375 | 320 | 282 | 260 | 38 | 12-30 | 260 | 395 | 600 | |
| 250 | 568 | 445 | 385 | 345 | 313 | 42 | 12-34 | 283 | 480 | 800 | |
| 300 | 648 | 510 | 450 | 408 | 364 | 46 | 16-34 | 380 | 585 | 800 | |
| 350 | 762 | 570 | 510 | 465 | 422 | 52 | 16-34 | 425 | 625 | 800 | |
| 400 | 838 | 655 | 585 | 535 | 474 | 58 | 16-41 | 492 | 720 | 800 | |
| 500 | 991 | 755 | 670 | 612 | 576 | 62 | 20-48 | 555 | 840 | 830 | |
| 600 | 1143 | 890 | 795 | 730 | 678 | 62 | 20-54 | 675 | 1050 | 830 | |
| 700 | 1346 | 995 | 900 | 835 | 768 | 68 | 24-54 | 850 | 1150 | 830 |
溫馨提示:
本文中所有文字、數據、圖片均只適用于參考。需要查看更多的Q347F不銹鋼蝸輪固定球閥性能參數、結構尺寸參數、價格等詳情,或要求高質量印刷樣本,請聯系我們。